Používáme cookies k optimalizaci našich webových stránek a našich služeb. Další informace o cookies najdete zde.

Nastavení


Prodej stavebního pozemku s projektem penzionu „Chalet Emma“ před vydáním stavebního povolení Rokytnice nad Jizerou

Prodej stavebního pozemku s projektem penzionu „Chalet Emma“ před vydáním stavebního povolení Rokytnice nad Jizerou

Cena: 11.700.000,- Kč

Popis nemovitosti

Prodej stavebního pozemku s projektem penzionu „Chalet Emma“ – Rokytnice nad Jizerou.

Nabízíme stavební pozemek s kompletním projektem rodinného penzionu „Chalet Emma“ v atraktivní horské lokalitě Rokytnice nad Jizerou. Projekt je připraven ve stavu před vydáním stavebního povolení, což umožňuje rychlý start investice.

Základní informace o projektu:
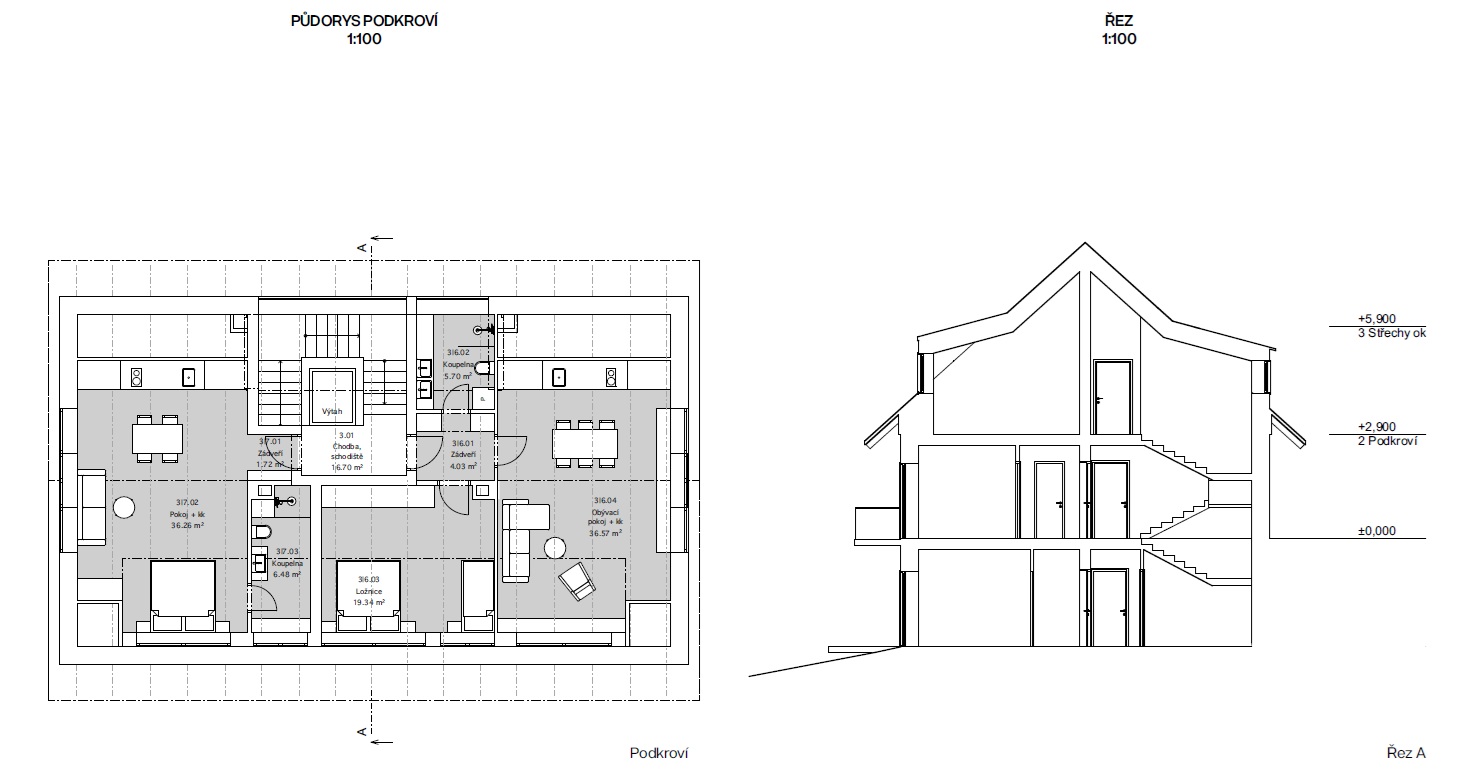
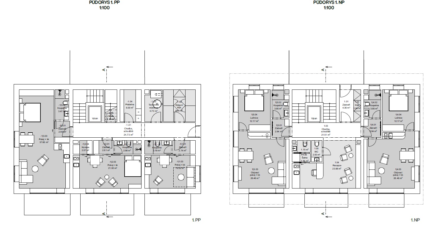
• Rodinný penzion se 7 ubytovacími jednotkami a recepcí
• Podsklepená jednopodlažní budova s obytným podkrovím
• Jednotky mají vlastní sociální zařízení a kuchyňku, některé přímo s přístupem na terasu nebo balkon
• Recepce, společenská místnost a úschovna sportovního vybavení
• Hlavní vstup z ulice, druhý vstup z podzemního podlaží na terasu

Charakteristika lokality:
Pozemek se nachází v oblasti s rozvolněnou zástavbou – v okolí jsou rodinné domy, penziony a bytové domy. Nenachází se v záplavovém ani poddolovaném území. Přístup je z místní komunikace. Pozemek je součástí zastavitelného území města.

Stav připravenosti projektu:
• Projekt je ve stavu před vydáním stavebního povolení
• Připravená plánovací smlouva
• Demoliční výměr stávající stavby s nabytím právní moci
• Zajištěna stanoviska dotčených orgánů
• Kompletní projektová dokumentace je k dispozici

Tento projekt představuje unikátní příležitost pro investory: stavební pozemek s připraveným projektem penzionu, včetně všech potřebných dokumentů, je ideální pro rychlou realizaci výstavby ubytovacího zařízení v prestižní horské lokalitě s celoroční turistickou atraktivitou.

Lubor Karásek

Jmenuji se Lubor Karásek a můžeme společně prodat Vaši nemovitost rychle, bezpečně a za nejvyšší možnou cenu.

Daří se mi to zejména za použití mého obchodního cítění, velké míře empatie a také důrazu na profesionální přístup.

Jako rodák z Podkrkonoší se specializuji na prodej rodinných domů a bytů v této lokalitě.

O nemovitosti v regionu se zajímám dlouhodobě a díky svým pracovním zkušenostem v oblasti obchodu a práce s lidmi mám přehled o potřebách svých klientů.

Kladu důraz na profesionální a korektní jednání a budování dlouhodobého vztahu se svými klienty i obchodními partnery.

Hodlám se i po několika letech podívat svým klientům zpříma do očí s vědomím, že jsem pro ně odvedl profesionální práci.

Z tohoto důvodu také spolupracuji s realitní kanceláří Evropa Vrchlabí, která stejně jako já tyto hodnoty uznává.

Lokality mé působnosti: Vrchlabí, Jilemnice, Nová Paka, Hostinné, Špindlerův Mlýn, Semily, Dvůr Králové, Jičín, Trutnov a samozřejmě vesnice a vesničky v jejich okolí.

Nebojte se mě kontaktovat, rád se s Vámi sejdu a vše nezávazně vysvětlím.

 


Lubor Karásek

Kontaktní formulář

Stáhnout PDF